Chapter 1 Mark IV 构型技术指标
根据 Mark I 和 Mark III 构型的特点,将其结合起来。
Mark I 构型的菲涅尔透镜可以将画面的虚像投射到无限远的位置,使用焦距为 F90mm 的菲涅尔透镜,透镜平整面距离屏幕图像源一面的距离为 74mm 的位置时,可以获得相对较好的对焦范围。
通过 Mark III 构型了解到分光镜相关的光学特性,从中掌握到了光路设计的一些经验, 可以用作 Mark IV 构型的设计与开发。
现有一对 40/60 分光镜,透 40 反 60;
一套双屏显示面板组合及其驱动器电路板;
现有 M3x4x5 热压铜螺母的加工经验;
因此根据现有的材料和设计经验,对 Mark IV 构型提出了如下的技术指标要求:
- 拥有至少 35° 到 40° 的垂直视场 ( VFOV );
- 拥有至少 40° 到 50° 的水平视场 ( HFOV );
Chapter 2 Mark IV 构型显示组件
Mark IV 构型的显示组件由屏幕基座与基座扣具两个部分组成。
屏幕基座主要安装两块显示面板,同时光路遮光罩也与其进行连接。基座扣具用于固定显示面板与 60PIN 分线电路板。
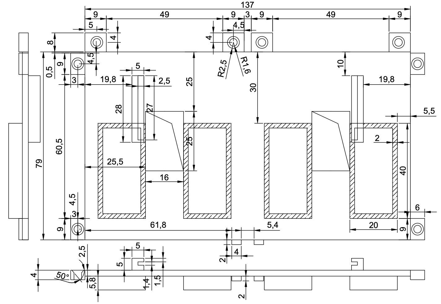
首先先看屏幕基座,尺寸与结构示意图详见下图。

主框架周围的开孔用于 M3x4x5 的热压铜螺母的二次加工,因此开孔半径设置为 2.5 mm。因为笔者使用的打印机在打印圆形时具有左右多出共近 0.7 mm 左右的打印误差,因此多余误差部分的材料足以固定热压铜螺母。不同打印机的误差不同,因此在绘制打印文件时需要根据实际情况进行开孔大小的调整。
主框架左右两侧各有两个固定孔位,用于与光路遮光罩进行固定。
中间有加强筋以增加结构的稳定性,加强筋在图纸上为 2mm,实际在设计打印件时,为了添加旷量,可以将宽度缩减为 1mm,不影响实际的加强效果。这个旷量图纸上的数据已经留出,上述方法只是为了打印机精度实在差的不行的人准备的,例如笔者的打印机...
读到这文档的人可能会问了,可以用光固化嘛?答案是不可以的,光固化没办法使用热压铜螺母,所以打咩。
主框架下面开有两个孔,作为扣具的卡扣使用。
我推荐的打印参数如下:
- 打印壁厚:0.8 mm
- 打印层高:0.2 mm
- 填充密度:30 ~ 50 %
- 挤出量:105 ~ 110 %

上图为安装好屏幕的屏幕基座。
之后来看看基座扣具,尺寸与结构示意图详见下图:

图中凸起的两个带有滑槽的设计,是用来卡住 60PIN 分线电路板的。下面的四个凸起的矩形是用来顶住屏幕,起到固定作用的。中间有两个天窗开槽,屏幕排线从中连出。
扣具使用 M3x6 的沉头十字螺丝与基座上的热压螺母固定。
打印时建议按照上图主视图的这个方向垂直打印,支撑结构建议选择网格结构而非线性结构,支撑的密度选择在 15 ~ 20% 可以获得较为光滑的表面。打印精度随意。
正式安装前,笔者建议仔细检查一下四个固定用的矩形的边角有无凸起,建议进行打磨一次。用于固定电路板的两个滑槽建议使用一字螺丝刀由内向外抛光一次滑槽。
下图是显示组件组装完成后的图像:


显示面板可以拼接显示一块完整的画面,程序的开发基于这种模式开发。

Chapter 3 Mark IV 构型光学组件
Mark IV 构型的光学组件部分主要用于固定分光镜与菲涅尔透镜这两个光学器件。
光学组件部分还要与遮光罩连接,与显示组件构成完整的光学结构。
光学组件部分的详细参数如下图所示:

框架上方的结构用于安装分光镜,由于这次的固定结构就需要占用 10mm 左右的长度,因此分光镜需要单独定制为 80x100mm 的规格,才可以达到预期的视场指标,实验使用的是 80x80mm 的分光镜,问就是这个月和下个月没钱定制新的分光镜,而我又要返校了,就很难受。
中间的两个开窗位置是用来安装菲涅尔透镜的,选择的是 80x80mm 的焦距为 F90mm 的菲涅尔透镜。
Chapter 4 Mark IV 遮光罩安装与总体效果
遮光罩部分没有什么好些的,主要是用于连接光学组件与显示组件这两个部分。
先来看渲染图:

下图是安装好之后的样子:

因为是双目的头显,因此安装有两块菲涅尔透镜与两块分光镜。

下图是屏幕通电后的显示效果,因为手头没有模拟人眼的双目摄像头,因此只展示右眼的画面:


图片中显示区域边缘的色散在人眼看来并没有图片中那样明显,不过依然存在,这是因为使用了较短的未经优化的菲涅尔透镜所造成的。不过在这个分光比之下,在封闭的较暗的室内环境下是可以看清显示内容的。
屏幕的颗粒感依然无法解决,是因为屏幕的分辨率只有 1080x1200 ,而市面上并没有在该尺寸下更高更亮的显示面板了,也许有,但是我并未发现。
评论区